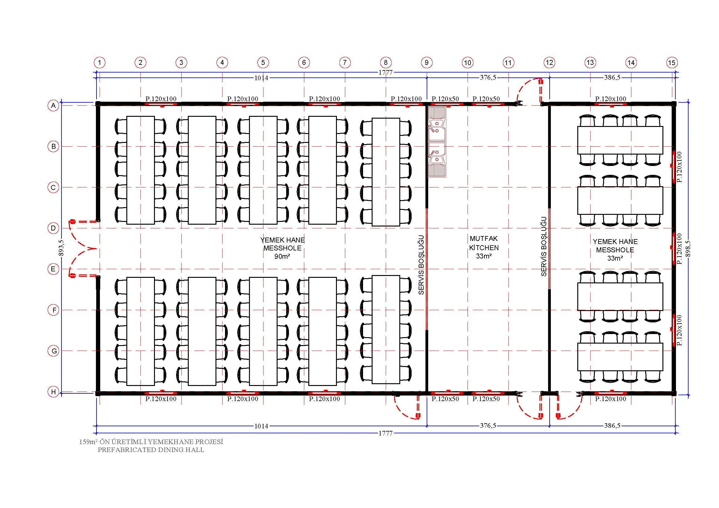
159 m² Prefabrik Yemekhane m2 DETAYLARI

159 metrekare prefabrik yemekhane, büyük çaplı şantiyeler, fabrikalar veya eğitim kurumları gibi alanlarda kalabalık personelin toplu yemek ihtiyacını karşılamak için idealdir. Geniş yemek salonu ve yeterli servis alanı sunar.

EVKON uzmanlığıyla tasarlanan bu yemekhaneler, yoğun kullanıma uygun, dayanıklı ve kolay temizlenebilir malzemeler kullanılarak üretilir. Hızlı üretim ve montaj süreçlerimizle, projelerinizin yemek hizmetini hızla çözüyoruz. Yüksek hijyen standartları ve konforlu ortam sağlar.

Avantajları: Yüksek kapasite, hızlı üretim ve kurulum, dayanıklılık, hijyen ve konforlu iç ortam, ekonomik çözüm.

PREFABRİK YEMEKHANE ÖZELLİKLERİ

Bina Yüksekliği: 250 cm

Dış Duvarlar: 10 cm

İç Duvar: 6 cm - 10 cm

Dış Kapı: Çelik Kapı

Bina Yüksekliği: 250 cm

NEDEN EVKON

EVKON olarak, prefabrik yapı sektöründe kaliteli malzeme, yenilikçi tasarım ve güvenilir hizmet anlayışıyla fark yaratıyoruz. Dayanıklı ve uzun ömürlü yapılarımız, enerji verimli sistemlerimiz ve hızlı montaj avantajımız sayesinde, size konforlu bir yaşam alanı sunuyoruz. Uzman ekibimizle her aşamada yanınızda olarak, ihtiyaçlarınıza özel çözümler üretiyoruz. Siz de modern, sağlam ve ekonomik bir prefabrik eve sahip olmak için hemen bizimle iletişime geçin!