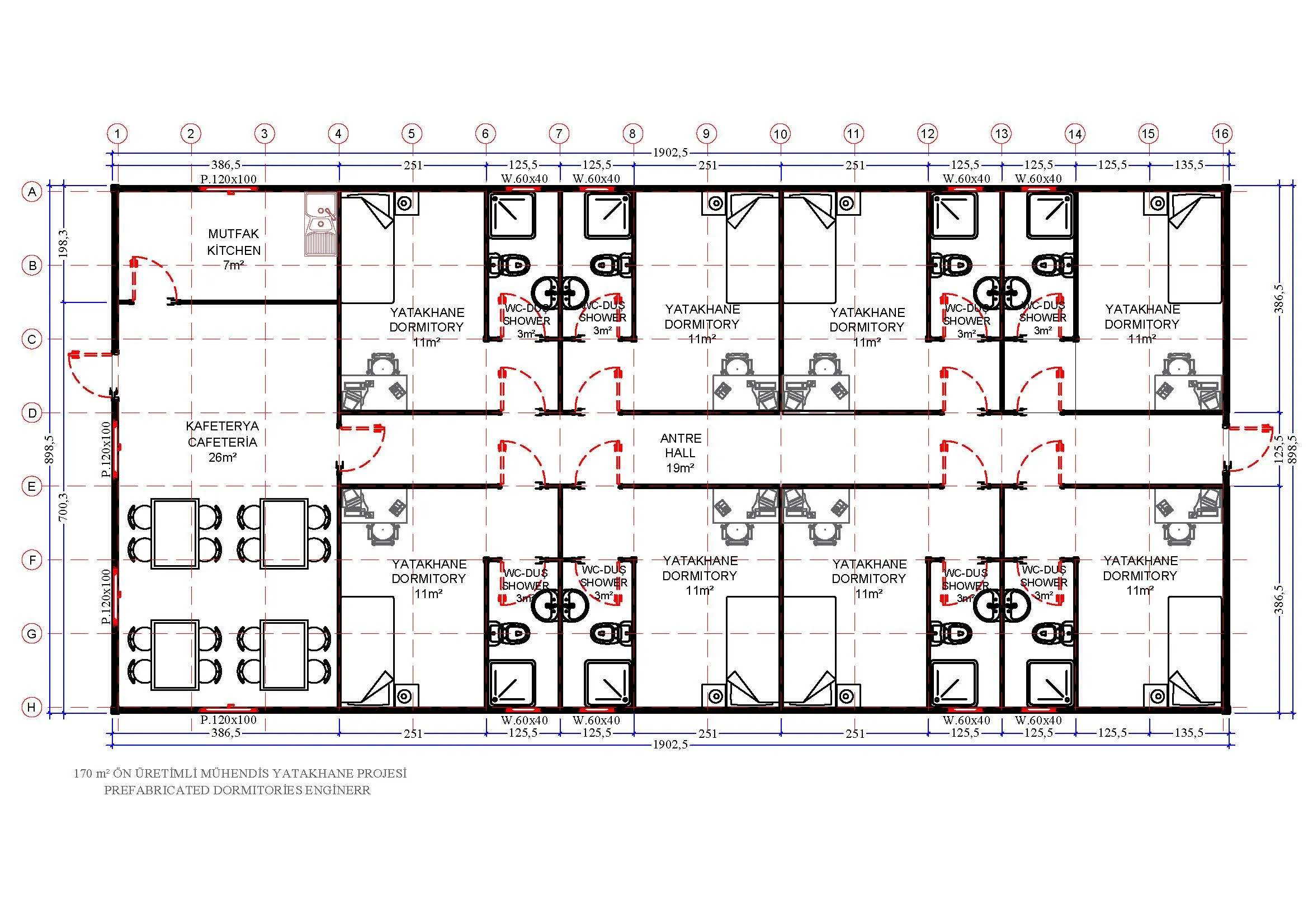
170 m² Prefabrik Yatakhane DETAYLARI

170 metrekare prefabrik yatakhane, belirli bir sayıdaki personelin veya çalışanın konforlu ve güvenli bir şekilde barınması için tasarlanmıştır. Hızlı kurulumu sayesinde acil barınma ihtiyaçlarına çözüm sunar.

EVKON olarak, bu yatakhanelerde kalite ve dayanıklılığı ön planda tutuyoruz. Yüksek yalıtım değerleri ve sağlam yapıları, zorlu saha koşullarında dahi konforlu bir yaşam alanı yaratır. Ekonomik ve pratik bir barınma çözümüdür.

Avantajları: Hızlı kurulum, ekonomik maliyet, dayanıklılık, konforlu barınma ortamı.

PREFABRİK YATAKHANE ÖZELLİKLERİ

Bina Yüksekliği: 250 cm

Dış Duvarlar: 10 cm

İç Duvar: 6 cm - 10 cm

Dış Kapı: Çelik Kapı

Bina Yüksekliği: 250 cm

NEDEN EVKON

EVKON olarak, prefabrik yapı sektöründe kaliteli malzeme, yenilikçi tasarım ve güvenilir hizmet anlayışıyla fark yaratıyoruz. Dayanıklı ve uzun ömürlü yapılarımız, enerji verimli sistemlerimiz ve hızlı montaj avantajımız sayesinde, size konforlu bir yaşam alanı sunuyoruz. Uzman ekibimizle her aşamada yanınızda olarak, ihtiyaçlarınıza özel çözümler üretiyoruz. Siz de modern, sağlam ve ekonomik bir prefabrik eve sahip olmak için hemen bizimle iletişime geçin!