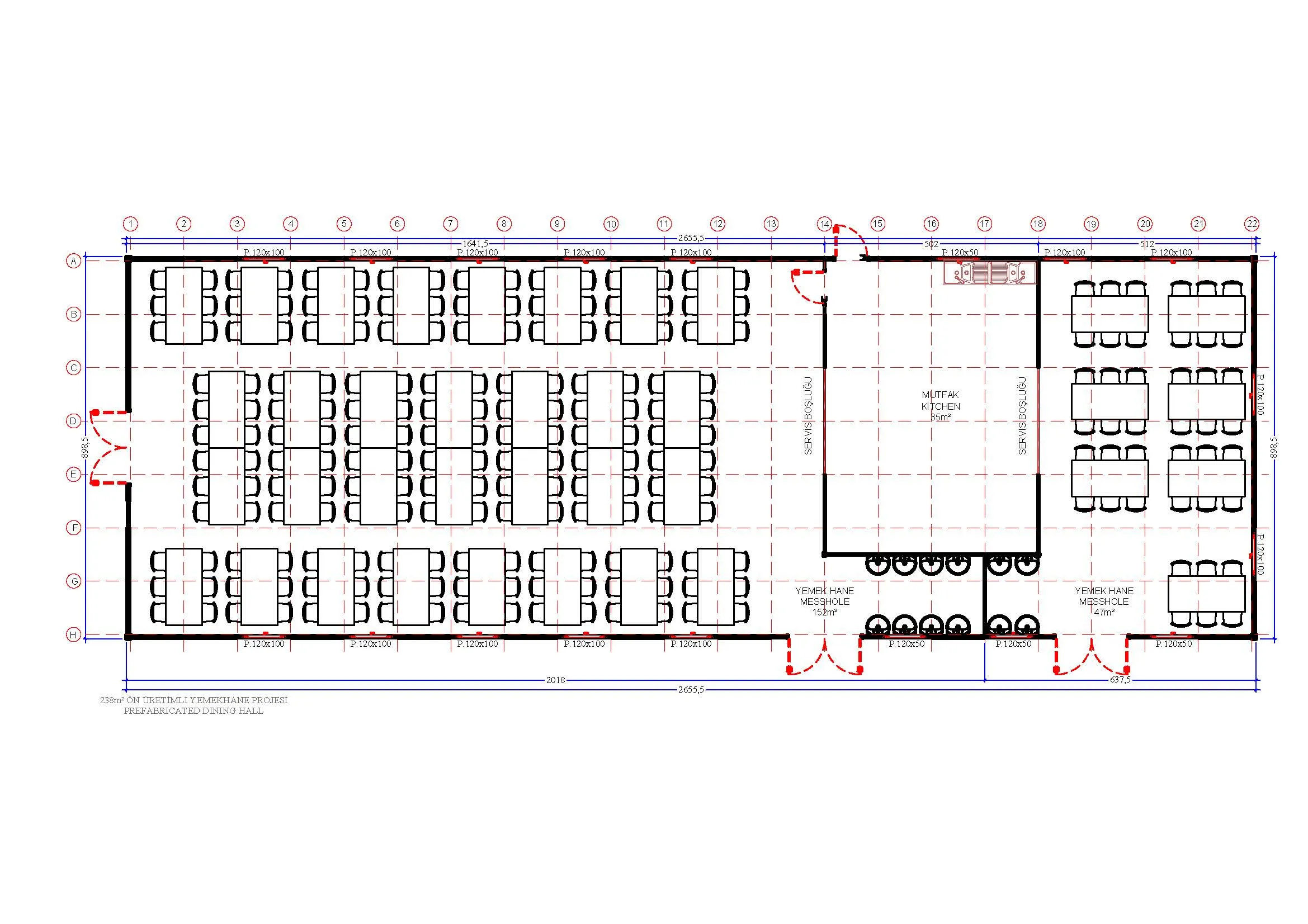
238 m² Prefabrik Yemekhane m2 DETAYLARI

238 metrekare prefabrik yemekhane, çok sayıda personelin aynı anda yemek yiyebileceği, kapsamlı bir toplu yemek tesisi çözümüdür. Geniş yemek salonu, mutfak, depo ve servis alanları gibi tüm birimleri barındırabilir.

EVKON kalitesiyle üretilen bu yemekhaneler, yüksek hijyen, güvenlik ve dayanıklılık standartlarına sahiptir. Zorlu saha koşullarına ve yoğun kullanıma karşı dirençlidir. Hızlı kurulum süresi sayesinde, büyük ölçekli projelerin yemek ihtiyacını hızla karşılar.

Avantajları: Çok yüksek kapasite, hızlı üretim ve kurulum, üstün dayanıklılık, hijyenik ortam, kapsamlı fonksiyonellik, ekonomik çözüm.

PREFABRİK YEMEKHANE ÖZELLİKLERİ

Bina Yüksekliği: 250 cm

Dış Duvarlar: 10 cm

İç Duvar: 6 cm - 10 cm

Dış Kapı: Çelik Kapı

Bina Yüksekliği: 250 cm

NEDEN EVKON

EVKON olarak, prefabrik yapı sektöründe kaliteli malzeme, yenilikçi tasarım ve güvenilir hizmet anlayışıyla fark yaratıyoruz. Dayanıklı ve uzun ömürlü yapılarımız, enerji verimli sistemlerimiz ve hızlı montaj avantajımız sayesinde, size konforlu bir yaşam alanı sunuyoruz. Uzman ekibimizle her aşamada yanınızda olarak, ihtiyaçlarınıza özel çözümler üretiyoruz. Siz de modern, sağlam ve ekonomik bir prefabrik eve sahip olmak için hemen bizimle iletişime geçin!