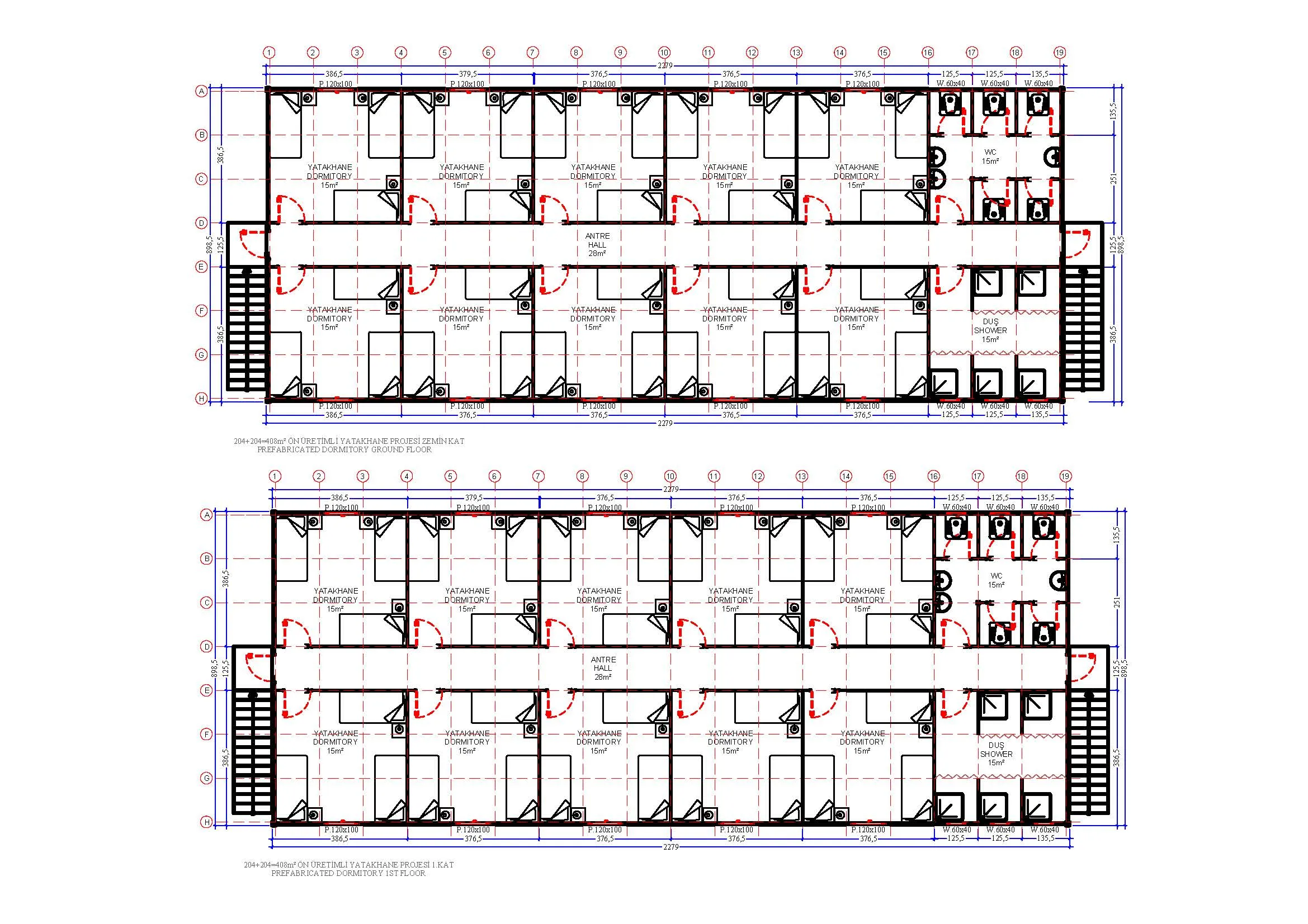
408 m² Prefabrik Yatakhane DETAYLARI

408 metrekare prefabrik yatakhane, şantiyeler, askeri tesisler, öğrenci kampları veya büyük ölçekli projeler gibi alanlarda kalabalık ekiplerin barınma ihtiyacını karşılamak üzere tasarlanmıştır. Geniş kapasitesiyle konforlu bir yaşam alanı sunar.

EVKON kalitesiyle üretilen bu yatakhaneler, zorlu saha koşullarına ve yoğun kullanıma dayanıklıdır. Yüksek yalıtım standartları sayesinde iç mekan konforu optimize edilmiştir. Hızlı üretim ve montaj süreçlerimizle projelerinizi destekliyor, barınma ihtiyacını hızla çözüyoruz.

Avantajları: Yüksek kapasite, hızlı üretim ve kurulum, dayanıklılık, konforlu iç ortam, ekonomik ve pratik çözüm.

PREFABRİK YATAKHANE ÖZELLİKLERİ

Bina Yüksekliği: 250 cm

Dış Duvarlar: 10 cm

İç Duvar: 6 cm - 10 cm

Dış Kapı: Çelik Kapı

Bina Yüksekliği: 250 cm

NEDEN EVKON

EVKON olarak, prefabrik yapı sektöründe kaliteli malzeme, yenilikçi tasarım ve güvenilir hizmet anlayışıyla fark yaratıyoruz. Dayanıklı ve uzun ömürlü yapılarımız, enerji verimli sistemlerimiz ve hızlı montaj avantajımız sayesinde, size konforlu bir yaşam alanı sunuyoruz. Uzman ekibimizle her aşamada yanınızda olarak, ihtiyaçlarınıza özel çözümler üretiyoruz. Siz de modern, sağlam ve ekonomik bir prefabrik eve sahip olmak için hemen bizimle iletişime geçin!