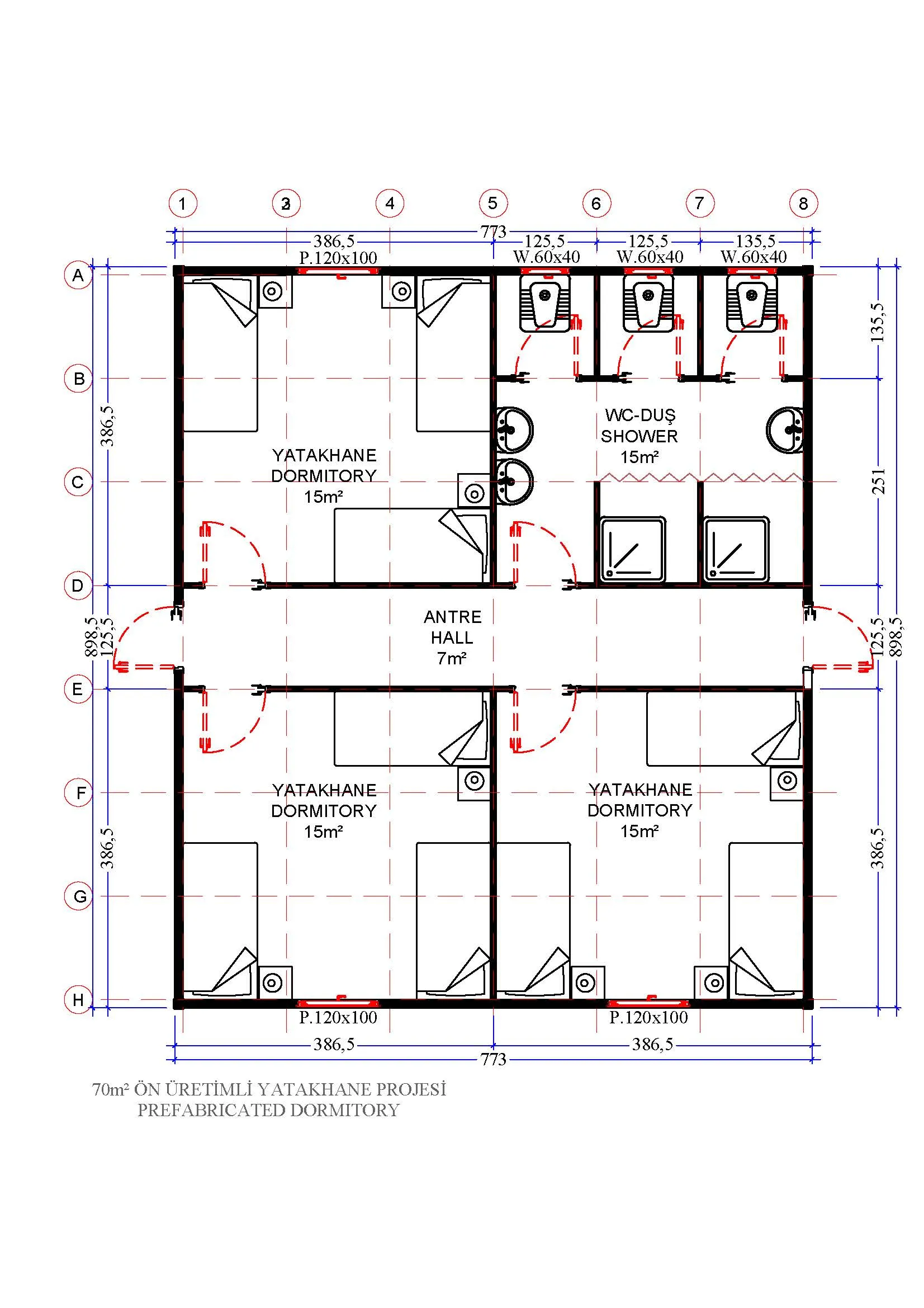
70 m² Prefabrik Yatakhane DETAYLARI

70 metrekare prefabrik yatakhane, acil barınma ihtiyacı veya çok küçük gruplar için tasarlanmış, kurulumu son derece hızlı ve ekonomiktir. Temel barınma ihtiyaçlarını karşılamak için idealdir.

EVKON güvencesiyle üretilen bu kompakt yatakhaneler, dayanıklı yapıları ve temel yalıtım özellikleriyle öne çıkar. Hızlı sevk ve montaj kabiliyeti sayesinde ihtiyaç duyulan yere hızla ulaştırılır. Güvenli bir barınma alanı sunar.

Avantajları: Son derece hızlı kurulum, ekonomik maliyet, temel yaşam alanı, dayanıklı yapı.

PREFABRİK YATAKHANE ÖZELLİKLERİ

Bina Yüksekliği: 250 cm

Dış Duvarlar: 10 cm

İç Duvar: 6 cm - 10 cm

Dış Kapı: Çelik Kapı

Bina Yüksekliği: 250 cm

NEDEN EVKON

EVKON olarak, prefabrik yapı sektöründe kaliteli malzeme, yenilikçi tasarım ve güvenilir hizmet anlayışıyla fark yaratıyoruz. Dayanıklı ve uzun ömürlü yapılarımız, enerji verimli sistemlerimiz ve hızlı montaj avantajımız sayesinde, size konforlu bir yaşam alanı sunuyoruz. Uzman ekibimizle her aşamada yanınızda olarak, ihtiyaçlarınıza özel çözümler üretiyoruz. Siz de modern, sağlam ve ekonomik bir prefabrik eve sahip olmak için hemen bizimle iletişime geçin!