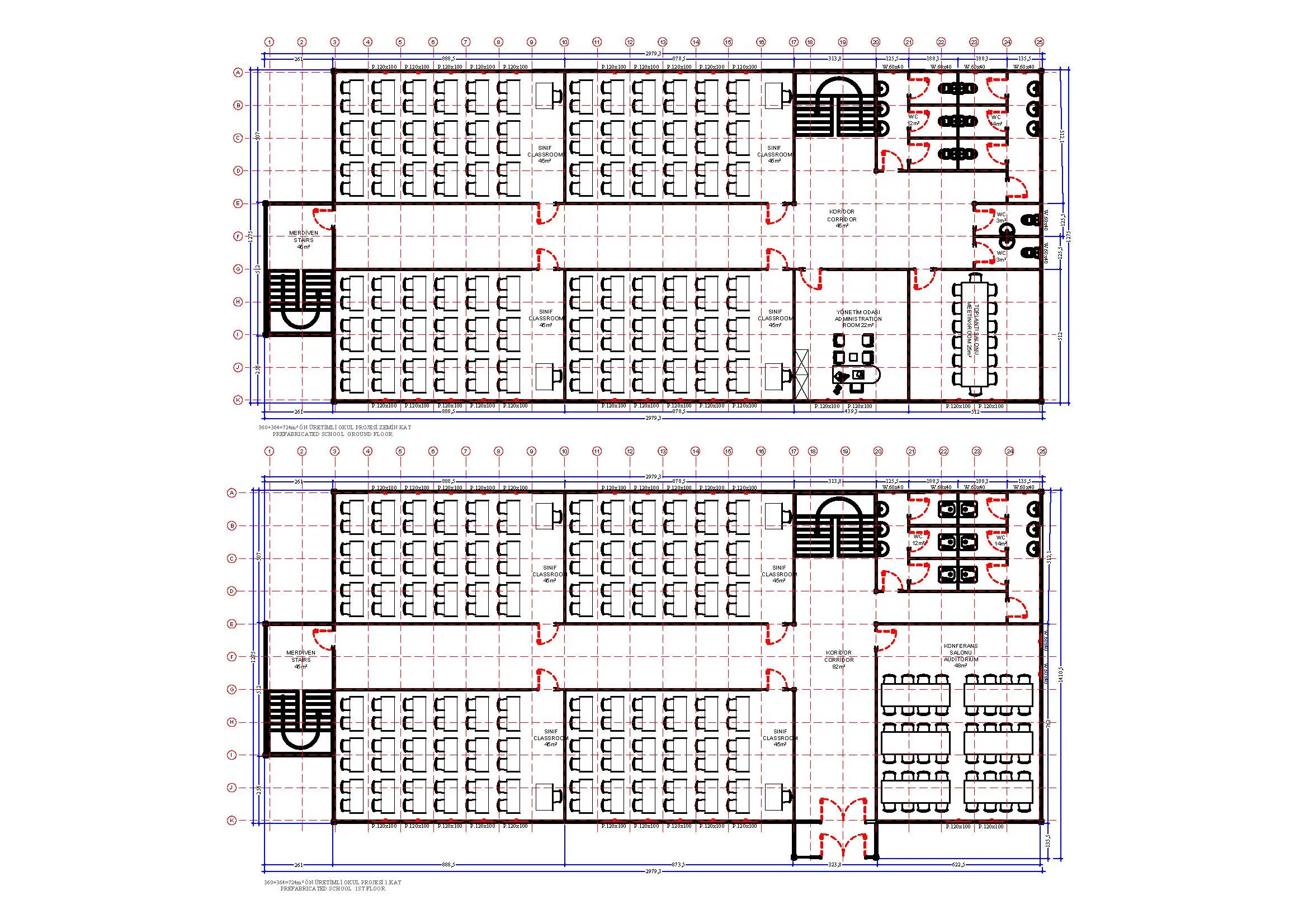
PREFABRİK 724 m² Okul Projesi DETAYLARI

724 metrekare okul projeleri, geniş öğrenci kapasitesi ve modern eğitim ihtiyaçları için idealdir. Hızlı inşa süresi ve ekonomik maliyetleriyle kurumlar için akılcı bir yatırımdır.

EVKON olarak, eğitim standartlarına ve güvenlik yönetmeliklerine uygun, ferah ve kullanışlı okul binaları tasarlıyor ve inşa ediyoruz. Yüksek dayanıklılığa sahip yapılarımız, uzun yıllar güvenle hizmet verir.

Avantajları: Hızlı üretim ve kurulum, depreme dayanıklılık, enerji verimliliği, esnek tasarım ve uzun ömürlü kullanım.

PREFABRİK Okul ÖZELLİKLERİ

Bina Yüksekliği: 250 cm

Dış Duvarlar: 10 cm

İç Duvar: 6 cm - 10 cm

Dış Kapı: Çelik Kapı

Bina Yüksekliği: 250 cm

NEDEN EVKON

EVKON olarak, prefabrik yapı sektöründe kaliteli malzeme, yenilikçi tasarım ve güvenilir hizmet anlayışıyla fark yaratıyoruz. Dayanıklı ve uzun ömürlü yapılarımız, enerji verimli sistemlerimiz ve hızlı montaj avantajımız sayesinde, size konforlu bir yaşam alanı sunuyoruz. Uzman ekibimizle her aşamada yanınızda olarak, ihtiyaçlarınıza özel çözümler üretiyoruz. Siz de modern, sağlam ve ekonomik bir prefabrik eve sahip olmak için hemen bizimle iletişime geçin!