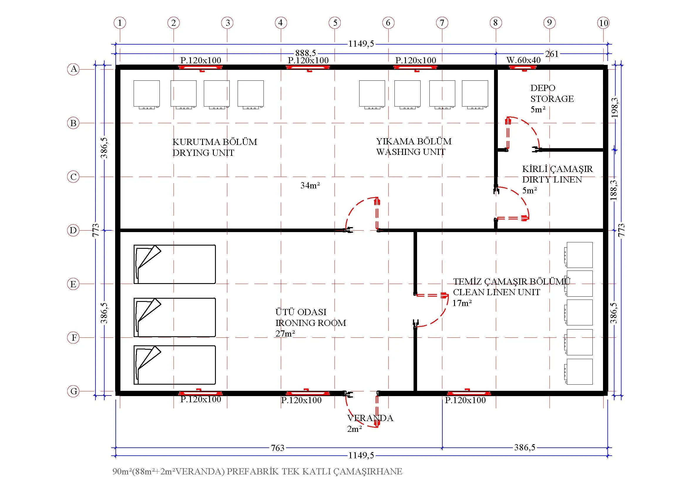
PREFABRİK 90 m² Çamaşırhane Projesi DETAYLARI

90 metrekare çamaşırhane projeleri, şantiyeler, öğrenci yurtları, askeri tesisler veya sanayi alanları gibi toplu kullanım gerektiren yerler için idealdir. Yoğun kullanıma ve nemli ortama dayanıklı malzemelerle üretilir.

EVKON olarak, işlevselliği ve dayanıklılığı ön planda tutarak pratik çamaşırhane çözümleri sunuyoruz. Hızlı kurulumu sayesinde kısa sürede hizmet vermeye başlar.

Avantajları: Hızlı kurulum, yüksek dayanıklılık (nem, deterjan), fonksiyonel düzenleme, ekonomik ve pratik çözüm.

PREFABRİK Çamaşırhane ÖZELLİKLERİ

Bina Yüksekliği: 250 cm

Dış Duvarlar: 10 cm

İç Duvar: 6 cm - 10 cm

Dış Kapı: Çelik Kapı

Bina Yüksekliği: 250 cm

NEDEN EVKON

EVKON olarak, prefabrik yapı sektöründe kaliteli malzeme, yenilikçi tasarım ve güvenilir hizmet anlayışıyla fark yaratıyoruz. Dayanıklı ve uzun ömürlü yapılarımız, enerji verimli sistemlerimiz ve hızlı montaj avantajımız sayesinde, size konforlu bir yaşam alanı sunuyoruz. Uzman ekibimizle her aşamada yanınızda olarak, ihtiyaçlarınıza özel çözümler üretiyoruz. Siz de modern, sağlam ve ekonomik bir prefabrik eve sahip olmak için hemen bizimle iletişime geçin!